


Listing Courtesy of: RHODE ISLAND / Engel & Volkers Oceanside / The Dispirito Team
256 Privilege Street Woonsocket, RI 02895
Pending (66 Days)
$479,900 (USD)
1.11
ACRES
Description
MLS #:
1404452
1404452
Taxes
$2,562(2025)
$2,562(2025)
Lot Size
1.11 acres
1.11 acres
Type
Land
Land
Views
Freshwater View, Water
Freshwater View, Water
County
Providence County
Providence County
Community
Ri Ma Line
Ri Ma Line
Listed By
The Dispirito Team, Engel & Volkers Oceanside
Source
RHODE ISLAND
Last checked Apr 17 2026 at 6:35 AM GMT+0000
RHODE ISLAND
Last checked Apr 17 2026 at 6:35 AM GMT+0000
Bathroom Details
Subdivision
- Ri Ma Line
Lot Information
- Urban
Utility Information
- Utilities: Municipal Water, Sanitary Sewers, Street Lights, Fiber Optic, Gas, Electricity Connected, Electricity Available, Natural Gas Available, Muncipal Water, Sewer Available, Phone Connected
Location
Disclaimer: IDX information is provided exclusively for consumers’ personal, non-commercial use and may not be used for any purpose other than to identify prospective properties consumers may be interested in purchasing. Information is deemed reliable but is not guaranteed. © 2026 State-Wide Multiple Listing Service. All rights reserved. 4/16/26 23:35
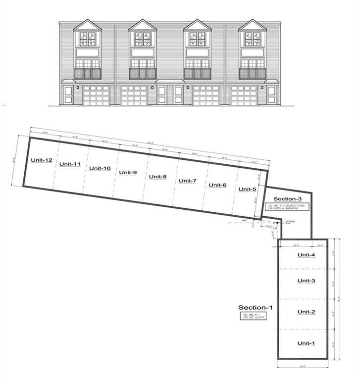
The project was previously approved for a 12-unit residential townhouse development with parking, utilities, and engineered stormwater infrastructure. The City issued Final Plan Approval and Findings of Fact confirming zoning compliance, no significant environmental impacts, and adequate municipal water/sewer capacity.
The development also received dimensional variance approval from the Woonsocket Zoning Board of Review for the full 12-unit scope.
RIDEM Freshwater Wetlands Permit approval is secured, including authorization for stormwater discharge under the RIPDES Construction General Permit, with stamped plans and defined terms in place.
Supporting municipal reviews include DPW utility sign-off (drainage acceptability) and Water Division requirements (hydrant placement, backflow devices, meter compatibility).
The previously approved plan set identifies Mill River Townhouses as Assessor’s Map 21, Lot 214.
This offering provides a major head start for a qualified builder or investor seeking a high-density infill project with entitlements substantially complete. Full development package available upon request.